新型復合式污水排氣閥設計規范
2022-02-21 09:44:09
132
本實用新型提供了一種污水排氣閥及污水排水系統,涉及閥門領域,包括排氣裝置和中空的閥體。閥體的一端為入口端,閥體的另一端為排氣端,排氣裝置設置于排氣端,排氣裝置具有使閥體與外界連通的狀態以及將閥體封閉的第二狀態,入口端和排氣端之間設置有減速段,減速段的內表面的截面面積大于入口端的內表面的截面面積。由于閥體的內表面截面面積為入口端小減速段大,所以污水進入閥體后會由于內表面截面面積的增大而使流速降低,使污水不會從排氣端沖出閥體而造成污染。
新型復合式污水排氣閥設計規范摘要附圖
污水排氣閥及污水排水系統本實用新型公開了一種新型復合式污水排氣閥,包括閥體和與閥體連接的閥蓋,所述閥體設有進氣通道,閥蓋設有排氣通道;閥體底部設置有與管道相連的連接結構,閥體內部設置浮球塞;所述閥體內部還設置有一個錐形圓盤,錐形圓盤上開設一個中心孔,中心孔的周圍開設通氣孔;所述中心孔內穿過一T型連桿,連桿上設置有彈簧,連桿下端連接在固定桿上,所述固定桿的兩端設置在連接結構上。本實用新型采用的錐形圓盤有效緩沖了由于壓力不穩定產生的汽水混合物,并對汽水混合物進行氣液分離,從根本上解決了漏水的問題,及時有效地發揮了排氣閥的排氣作用,大大提高了排氣閥的適應性和使用壽命;并且,本實用新型設計簡單合理,加工方便成本低,易于推廣。,

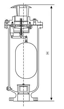
新型復合式污水排氣閥設計規范技術領域,零件材質,主要外形及連接尺寸,
,新型復合式污水排氣閥設計規范要求書1.一種污水排氣閥,其特征在于,包括排氣裝置和中空的閥體,所述閥體的一端為入口端,所述閥體的另一端為排氣端,所述排氣裝置設置于所述排氣端,所述排氣裝置具有使所述閥體與外界連通的狀態以及將所述閥體封閉的第二狀態,所述入口端和所述排氣端之間設置有減速段,所述減速段的內表面的截面面積大于所述入口端的內表面的截面面積。
2.根據權利要求1所述的污水排氣閥,其特征在于,所述減速段包括漸變段和等徑段,所述漸變段的一端與所述等徑段連接,所述漸變段的另一端與所述入口端連接,所述漸變段的內表面的面積從所述入口端至與所述等徑段相連的一端逐漸變大。
3.根據權利要求1所述的污水排氣閥,其特征在于,所述排氣裝置包括排氣件和用于降低水流流速的阻擋件,所述阻擋件可活動的設置于所述閥體內,所述阻擋件通過導桿與所述排氣件連接,所述阻擋件的遠離所述排氣件的一端與所述入口端相鄰且相對設置。
4.根據權利要求3所述的污水排氣閥,其特征在于,所述閥體內設置有至少三個閥瓣,所述閥瓣沿所述阻擋件的周向分布,所述閥瓣的一端與所述閥體的內壁固定連接,所述閥瓣的另一端靠近所述阻擋件,至少三個所述閥瓣之間形成用于容納所述阻擋件的活動通道。
5.根據權利要求3所述的污水排氣閥,其特征在于,所述阻擋件為中空的圓筒型浮球。
6.根據權利要求4所述的污水排氣閥,其特征在于,所述排氣件包括排氣筒,所述排氣筒從所述排氣端插入于所述閥體,所述排氣筒的一端為調節部,另一端為排氣口,所述阻擋件能夠沿所述排氣筒的內壁滑動。
7.根據權利要求6所述的污水排氣閥,其特征在于,所述排氣口固定設置有導向管,所述導向管沿所述排氣筒的軸向設置,所述導桿可滑動的穿過所述導向管,所述導桿的遠離所述阻擋件的一端設置有限位部,所述限位部與所述導桿固定連接,所述限位部的寬度大于所述導向管的內徑。
8.根據權利要求7所述的污水排氣閥,其特征在于,所述限位部和所述導向管之間設置有防撞墊片,所述防撞墊片套設于所述導桿。
9.根據權利要求7所述的污水排氣閥,其特征在于,所述排氣裝置還設置有密封蓋和具有開口的閥蓋,所述閥蓋蓋合在所述排氣口,所述密封蓋包括密封蓋和連接桿,所述連接桿可滑動的與所述閥蓋連接,所述密封蓋位于所述閥蓋和所述導向管之間;所述排氣裝置的狀態為所述密封蓋抵住所述閥蓋并使所述閥體封閉,所述排氣裝置的第二狀態為所述密封蓋脫離所述閥體并使所述閥體與外界連通。
10.一種污水排水系統,其特征在于,包括污水管道和權利要求1-9任意一項所述的污水排氣閥。,
,新型復合式污水排氣閥設計規范在工業和民用水處理過程中,為了保證水質和水泵的工作效率,通常需要使用排氣閥對管網、管線或者其他帶壓半密閉式設備中集結的空氣進行排放處理。
但在空氣排放的過程中,由于壓力大,而且流速快,容易導致一般的排氣閥漏水或者污水從排氣閥的出氣口沖出。為防止排氣閥漏水,通常將排氣閥做得很長,但卻不能有效的降低污水的速度,并且在現場安裝的時候由于體積大,容易受到安裝地形的影響,導致安裝不便,也會造成安裝不嚴密反而影響排氣閥作用和使用壽命。,

新型復合式污水排氣閥設計規范實用新型內容
本實用新型提供了一種污水排氣閥及污水排水系統,使上述的問題得到有效改善。用于管路上的點或有閉氣的地方,排除管內的氣體來疏通管道,達到正常工作,如不裝排氣閥,管內流動的液體產生動熱引起氣體,形成短路,使管道出水容量達不到要求,其次,管道運轉時出現停電、停泵管道會出現負壓力,而會引起管道振動或破裂,排(吸)氣閥就迅速把空氣吸入管內,防止管道振動或破裂。本閥裝設于泵埔出口處或送配水管線中,用以大量排除管道中的集結之空氣,以增進水管及抽水機使用效率,且與管內一旦出現負壓時,此閥能迅速吸入空氣,以保管線因負壓所產生損壞。
當管內開始注水時,塞頭停留在開啟位置,進行大量排氣,當空氣排完時,閥內積水浮球被浮起,傳動塞頭至關閉位置,停止大量排氣;當管內水正常輸送時,如有少量空氣聚集在閥內到相當程度,閥內水位下降,浮球隨之下降,此時空氣則由小孔排出。當抽水機停止,管內水流空時,或遇管內產生負壓時,此時塞頭開啟,吸入空氣確保管線安全。,

新型復合式污水排氣閥設計規范本實用新型是這樣實現的:
本實用新型的實施例提供了一種污水排氣閥,包括排氣裝置和中空的閥體。閥體的一端為入口端,閥體的另一端為排氣端,排氣裝置設置于排氣端,排氣裝置具有使閥體與外界連通的狀態以及將閥體封閉的第二狀態。入口端和排氣端之間設置有減速段,減速段的內表面的截面面積大于入口端的內表面的截面面積。
可選的,上述減速段包括漸變段和等徑段,漸變段的一端與等徑段連接,漸變段的另一端與入口端連接,漸變段的內表面的面積從入口端至與等徑段相連的一端逐漸變大。
可選的,上述排氣裝置包括排氣件和用于降低水流流速的阻擋件,阻擋件可活動的設置于閥體內,阻擋件通過導桿與排氣件連接,阻擋件的遠離排氣件的一端與入口端相鄰且相對設置。
可選的,上述閥體內設置有至少三個閥瓣,閥瓣沿阻擋件的周向分布,閥瓣的一端與閥體的內壁固定連接,閥瓣的另一端靠近阻擋件,至少三個閥瓣之間形成用于容納阻擋件的活動通道。
可選的,上述阻擋件為中空的圓筒型浮球。
可選的,上述排氣件包括排氣筒,排氣筒從排氣端插入于閥體,排氣筒的一端為調節部,另一端為排氣口,阻擋件能夠沿排氣筒的內壁滑動。
可選的,上述排氣口固定設置有導向管,導向管沿排氣筒的軸向設置,導桿可滑動的穿過導向管,導桿的遠離阻擋件的一端設置有限位部,限位部與導桿固定連接,限位部的寬度大于導向管的內徑。
可選的,上述限位部和導向管之間設置有防撞墊片,防撞墊片套設于導桿。
可選的,上述排氣裝置還設置有密封蓋和具有開口的閥蓋,閥蓋蓋合在排氣口,密封蓋包括密封蓋和連接桿,連接桿可滑動的與閥蓋連接,密封蓋位于閥蓋和導向管之間,排氣裝置的狀態為密封蓋抵住閥蓋并使閥體封閉,排氣裝置的第二狀態為密封蓋脫離閥體并使閥體與外界連通。,

新型復合式污水排氣閥設計規范新型復合式排氣閥安裝要求:
1.于安裝前,請先檢查并 主體內的雜物。
2.在閥前裝一只閘閥,以便下次的安裝維修。閥如果安裝于蔭井內,應有足夠空間以便容納技術人員調整及維護工作。
3.若新型復合式排氣閥安裝于室外,請注意閥門的保溫,以防閥門內水結冰或凍裂閥門。
4.若排氣閥所在管線送斷水頻繁,建議在排氣閥前加裝一個緩沖閥。,

本實用新型還提供了一種污水排水系統,包括污水管道和上述的污水排氣閥。復合式高速排氣閥在運行中存在的問題,通過分析、研究制定相應的方案,在容易損壞的排氣閥與主管道之間加裝自制的緩沖器,從而解決了排氣閥高維修率的情況,大大提高了排氣閥的使用壽命。